T0 GROUND FAULT
접지 장애는 수신기 내부의 시스템 전원반에서 발생하는 것으로, 전원반의 DC 출력 단자가 접지와 연결되어 발생홥니다.
이 장애와 다른 장애가 같이 발생할 경우, 수신기는 이상 동작할 수 있습니다. 현장에 점검 인원을 파견해야 합니다.
시스템 전원반에는 주 전원(220V~, 60Hz)과 예비 전원(24V, 26AH)이 연결되어 있으며, 감전의 위험이 높습니다. 안전 장비를 갖주고 점검 및 수리해야 합니다.
설명
이 장애는 시스템 전원반(System Power Supply, AMPS-24)의 출력(부하)측의 (+) 혹은 (-) 배선이 대지와 낮은 저항으로 연결되어 누전되고 있는 상태입니다. 아울러, 이 장애는 시스템 전원반에 올바른 접지가 시공되어야만 감시 및 발생할 수 있습니다.
시스템 전원반이 수신기 내부 카드들에만 전원을 공급하는 경우, 해당 수신기 내부 장치에 접지 장애가 발생했다고 판단할 수 있습니다. 통신 카드(LCM-320, LEM-320)에 연결된 통신선(SLC)에서 발생하는 접지 장애는 이 장애와 다른 장애이며, 자세한 사항은 GROUND FAULT LOOP X를 참조하여 주십시오.
접지 장애는 대지와 연결된 어떤 개체(기기)와 하나 혹은 그 이상의 시스템 도체(배선, 전기장치, 등등..)의 전기적 연결에 의해 발생합니다. 이 연결은 직접적인 연결, 용량 결합, 유도 결합, 혹은 이것들의 조합을 포함합니다. 접지의 발생은 그 정도에 따라 시스템에 다른 영향을 주므로, 아래의 민감도 이하로 떨어지는 경우에는 필히 개선하여야 합니다.
AMPS-24의 접지 고장 감시 회로의 민감도 설정은 50,000옴(50M Ohm)입니다. 즉, 시스템과 대지와의 단독 혹은 조합된 임피던스(Impedance)가 50,000옴 이하일 때, 접지 장애가 발생합니다.
원리
직접적인 연결에 의한 접지 장애
접지 감시 기능을 가진 전원반은 접지 장애의 감시를 위해 0.25Hz, 4.0Vp-p의 사각 파형을 사용합니다. 정상의 경우, 양극과 음극은 각각 4.0Vp-p인 사각파형의 펄스를 가집니다. 이때, 부하는 (+), (-)의 상대전압으로 동작하게 되는데, 사각파형의 펄스를 가지고 있으나, 상대 전압은 항상 24VDC를 유지하므로, 기기는 정상 동작 할 수 있게 됩니다.
아래의 그림은 정상 상태 전원반의 (+), (-)의 절대 전압을 스코프메터(Scope Meter)로 측정한 것입니다.

(+) 배선에 접지가 발생된 경우, (+)선은 0V가 되고, (-)선은 -24V가 됩니다. (+)의 전공은 대지를 통해 빠져나가게 되므로, 대지와 같은 0V 가 되며, (+)과 (-)에 있던 각각의 사각 파형의 펄스는 없어지게 됩니다. 하지만, 기기에 공급되는 상대전압은 그대로 24V이므로, 기기 동작에는 문제가 없습니다.
아래 그림은 정상상태였다가 27초 후, (+)배선에 접지가 발생하는 것을 스코프메터(Scope Meter)로 측정한것입니다.

위와 반대로 (-)배선에 접지가 발생된 경우, (+)선은 +24V가 되고 (-)선은 0V가 됩니다. 역시나 사각 파형의 펄스는 없어지게 되며, 상대전압은 24V이므로 기기는 정상 동작 합니다.
(+) 배선의 접지가 발생한 상태에서는 (-)배선으로 -24V의 전기가 공급되므로, (+)만 제어하도록 구성한 기기에 원치 않는 오동작이 발생할 수 있습니다. 아래의 주의 내용을 참조하시기 바랍니다.
아래 그림은 정상상태였다가 약 27초 후, (-)배선에 접지가 발생하는 것을 스코프메터(Scope Meter)로 측정한 것입니다.

이때, 접지 장애는 (+) 배선 혹은 (-) 배선의 전압이 0V라는 것에 의해 발생하는 것이 아니라, 4Vp-p의 사각 펄스가 없어지면 장애 이벤트가 발생하게 됩니다.
다중 임피던스(Impedance)에 의한 접지 장애
대지와 연결되어 접지 장애를 발생시키는, 문제의 연결이 꼭 완전 단락 되어야 하는 것은 아닙니다. 즉, 여러 개의 작은 접지가 혼합되어 한계 값(threshold)을 넘기게 되는 경우도 흔히 발생합니다.
아래 그림과 같이 각 배선에 연결된 높은 임피던스(Impedance)에 의해 접지 장애가 발생될 수 있습니다.

위의 회로에서 각각의 임피던스(Impedance)가 200M옴이라고 가정하면, 각각의 임피던스(Impedance)에 의해 접지 장애가 발생하지는 않습니다. 하지만, 모두 병렬로 연결되어 있으므로 아래와 같이 총 임피던스(Impedance)는 40M옴이 되며, 장애 한계 값(threshold)을 넘기게 됩니다.

이러한 임피던스(Impedance)는 R(저항), L(코일, 인덕터), C(콘덴서, 커패시터)의 합성 값이며, 그 상관 관계는 아래와 같습니다.

그러므로, 접지 장애는 저항에 의해서만 발생하는 것이 아니라, L (인덕턴스)이나 C (커패시턴스) 혹은 이것의 혼합에 의해서도 발생할 수 있습니다.
장애 확인
이 장애가 발생하면, 아래 모듈의 상태 LED에 따라 조치해야 합니다. 자세한 사항은 AMPS-24 Status LED를 참조하여 주시기 바랍니다.
해결 방법
접지 장애를 해결하는 방법은 다음과 같습니다.
USB 장치 연결
CPU2-3030, DVC, AMPS-24등 USB포트와 연결된 기기(특히 프로그램용 노트북)가 있는 경우, 제거하여 주시기 바랍니다. USB 케이블은 연결 기기간의 통신시, 기기간의 서로 다른 전위차로 인한 기기 파손을 막기 위해, 접지 단자를 가지고 있습니다. 이때, 시스템은 이 접지 단자와 연결기기의 접지로 인하여 허용되지 않은 접지가 연결된 것으로 인식하게 됩니다.

위의 그림에서 보면, 수신기는 Laptop을 통해 연결된 다른 접지로 인하여 접지 장애가 발생합니다. (Laptop만 연결하고, Laptop에 다른 접지가 연결되지 않아도, Laptop 자체가 하나의 큰 커패시터가 되어, 장애가 발생할 수 있습니다.) 그러므로, 기기가 고장나거나 장애가 있는 것은 아닙니다.즉, USB 기기가 연결되었을때, 접지 장애가 발생하는 것은 정상입니다. 노트북에 AC 접지가 연결되지 않았어도 접지 장애는 발생할 수 있습니다.
하나의 수신기 여러 개의 전원반
접지 장애를 감시할 수 있는 능력을 가진 전원반이 같은 백박스(backbox)에 설치된 경우, 접지 장애가 발생할 수 있습니다. 이는 접지 감시를 위한 펄스(4Vp-p)간의 간섭에 의한 것으로, 기기가 고장나지 않은 정상상태에서도 발생할 수 있습니다. 또한 서로 다른 전원반이 각각의 백박스(backbox)에 설치되었으나, 백박스(backbox)간의 본딩이 연결된 경우에도 발생할 수 있습니다.

이러한 경우, 접지 장애를 감시하는 능력을 하나의 전원반에만 부여하고, 나머지 전원반에는 접지 감시 기능을 정지(Disable) 시켜야 합니다. 이때, 접지 장애를 감시하는 전원반은 CPU와 연결된 AMPS-24에게 부여하시는 것이 좋습니다.

제품 설치, 결선 문제
제품의 잘못된 설치 (특히 고정을 위한 볼트, 너트) 혹은 결선에 의해 발생될 수 있습니다.

위의 그림은 LCM-320으로, 붉은색으로 표기된 구멍에 LEM-320과의 고정을 위한 볼트를 설치할 경우, 접지 장애가 발생합니다. 해당 구멍은 제품 생산을 위해 필요한 것으로, 고정용으로 사용하시면 안됩니다. (현재 생산되는 제품은 해당 구멍이 없어졌으므로 이러한 문제가 더이상 없으나, 과거 생산한 제품에서는 이런 문제가 있을 수 있어, 설명합니다.)
연결 기기, 연결 배선 문제
접지 장애를 시스템 전원반의 DC 출력을 이용하여 감시하므로, 시스템 전원반의 각 터미널 블럭에서 배선을 하나씩 제거해 봐야 합니다. 이때, 배선을 제거 후에 약 1분 동안 기다렸을때, 접지 장애가 없어지는지를 확인합니다.

CPU2-3030의 J7에 연결된 LCM/LEM 중에서 가장 먼 카드부터 하나씩 제거합니다.
CPU2-3030의 J1에 연결된 NUP 케이블을 제거합니다.
기타 다른 배선들의 연결을 하나씩 제거합니다. (예 : TB1~6, TB9, J5~6등..)

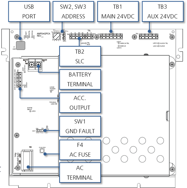
AMPS-K2 / TB3 : AUX 24V 단자에 연결된 케이블을 제거합니다.
CPS-24 / TB2 : ACC. 24V 및 5V 단자에 연결된 케이블을 제거합니다.
CPU-24 / TB3 : 베터리와 연결된 케이블을 제거합니다.
AMPS-K2 / TB2 : SLC의 연결을 제거합니다. 이때, CPU2-3030을 통해 접지 장애를 알 수 없으므로, CPS-24의 상태 LED 3번을 이용하여 접지 장애 유무를 확인합니다.
AMPS-K2 / TB1 : CPU2-3030 혹은 XLS3000-CPU의 전원 공급 케이블을 제거합니다. 이때, XLS3000-CPU를 통해 접지 장애를 알 수 없으므로, CPS-24의 상태 LED 3번을 이용하여 접지 장애 유무를 확인합니다.
위의 절차를 통해 문제의 연결을 찾은 경우, 해당 기기와의 연결 배선만을 연결하고 접지 장애의 유무를 확인하시기 바랍니다. 먄약, 배선만 연결시에도 접지 장애가 없어지지 않을 경우, 당연히 배선에 문제의 근원이 있음을 알 수 있습니다.
하드웨어 고장
시스템 전원반인 AMPS-24의 내부 회로 이상으로 발생할 수 있습니다. 이 경우, 시스템 전원반을 교체해야 하며, AMPS-24 HARDWARE FAIL을 참조하여 주시기 바랍니다.
위험성
(+) 배선의 접지가 발생한 상태에서는 (-)배선으로 -24V의 전기가 공급되므로, (+)만 제어하도록 구성한 기기에 원치 않는 오동작이 발생할 수 있습니다.

위의 그림은 정상 상태의 회로로 (+)선으로 +24V가 투입되며, 기기 제어를 위해 이 (+)배선을 제어하는 회로입니다.

이 상태에서 전원반의 (+) 배선에 접지가 발생한 경우, 전원반의 (+)배선은 0V가 되고 (-)배선으로 -24V가 공급됩니다.

여기에서 중계기와 부하기기 사이의 (+) 배선에 또 접지가 발생되면, 위와 같이 접지를 이용하여 폐회로가 형성되고, 중계기가 동작하지 않아도 기기는 동작하게 됩니다.
Last updated